195 549
Залишити відгук  ↓
 
 

Опис
Фінська кутова сауна TG5C з каменкою

Фінська сауна з канадської ялиці відома своїми корисними властивостями для здоров'я і краси. Відвідування сауни має багато переваг для краси, особливо для зовнішнього вигляду шкіри. Для фінських саун характерна можливість приймати сухі ванни при високих температурах.

Завдяки відвідуванням сауни:

  • сальні залози розблоковуються, а тіло позбавляється від надлишку шкірного сала - тому сауна корисна для людей, які хочуть схуднути, вона також допомагає в боротьбі з целюлітом і недоліками шкіри
  • Надмірна кількість солі виводиться з організму через піт, що запобігає затримці води та набрякам
  • тканини краще забезпечуються кров'ю, а шкіра насичується киснем
  • шкіра стає гладкою
  • організм старіє повільніше
  • ми виводимо з організму домішки, важкі метали та токсини
  • Завдяки більшій кількості ендорфінів, що виробляються в сауні, ми відчуваємо себе більш розслабленими
  • косметика, використана після виходу з сауни, краще засвоюється
  • ви загартовуєте організм і підвищуєте загальний імунітет, прискорюєте кровообіг, зміцнюєте судини, розвантажуєте нерви

Характеристики
Фінська кутова сауна TG5C з каменкою

Блок живлення 380 В (потужність)
Джерело тепла електрична плита
Кількість осіб 5
Обладнання • внутрішнє освітлення • піч і каміння • відро з черпаком для поливання каміння • гігрометр (вимірювання вологості) • пісочний годинник (для вимірювання часу відвідування сауни)
Орієнтовний час складання 2-3 години
Повний баня, піч, каміння, відро з черпаком
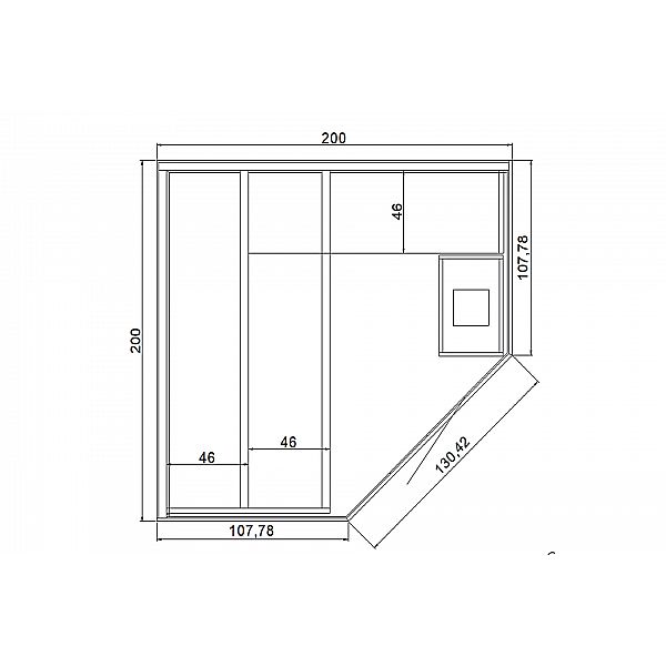
Розміри (ширина х довжина х висота) 200 см х 200 см х 200 см
Споживання енергії 9 кВт/год
Температурний діапазон 60°C - 90°C
Товщина стіни приблизно 4,5 см
Час розігріву приблизно 30 хвилин
Додаткова інформація • сауна для самостійного монтажу - стіни, підлогу та стелю потрібно просто скріпити між собою хомутами • товар поставляється на піддоні
Колір коричневий
Матеріал конструкції деревина, ялиця канадська
Потужність 9000 Вт
Тип Фінська, для внутрішнього використання

Відгуки (0)

Написати відгук

Увага: HTML не підтримується!
    Погано           Добре

Переглянуті Вами товари

56 565
8 791
195 549